HF QuickHitch vs iMatch

/ HF QuickHitch vs iMatch #1  

doabbs

Member
Joined
Apr 10, 2011
Messages
34
Location
New Hampshire
Any pros/cons to the HF QuickHitch when compared to iMatch? Don't have either but figured they look almost identical.
 
/ HF QuickHitch vs iMatch #2  
The HF hitch is a lot cheaper!!!
 
/ HF QuickHitch vs iMatch #3  
Beware, not all quick hitches are the same. The I-match is made to ASAE specs and measurements. Others are not. What you will run into is some attachments will fit and some won't, even w/ the I-match. Many older implements weren't made to go on a quick hitch and the hook on the hitch won't fit up to the top link. I had a woods blade and LP tiller that were like that. Also, rotary cutters or "bush hogs" will not go on a quick hitch unless it has special top link linkage. As far as the H.F. hitch I would definitely stay away from.
The I-match will fit all Deere/Frontier as well as newer Woods, some Land Pride and Worksaver.
 
/ HF QuickHitch vs iMatch #4  
I've been using the HF quick hitch for 4 years now and it works just fine. Some of my implements do have brackets or reinforcements that interfere with the top link hook so I did buy the top link adapter. As far as I can tell JD makes their attachments to work with their hitch. That's fine but you do pay more for the green paint plus if you own any non JD implements you still may have fit issues.
 
/ HF QuickHitch vs iMatch #5  
Any pros/cons to the HF QuickHitch when compared to iMatch? Don't have either but figured they look almost identical.

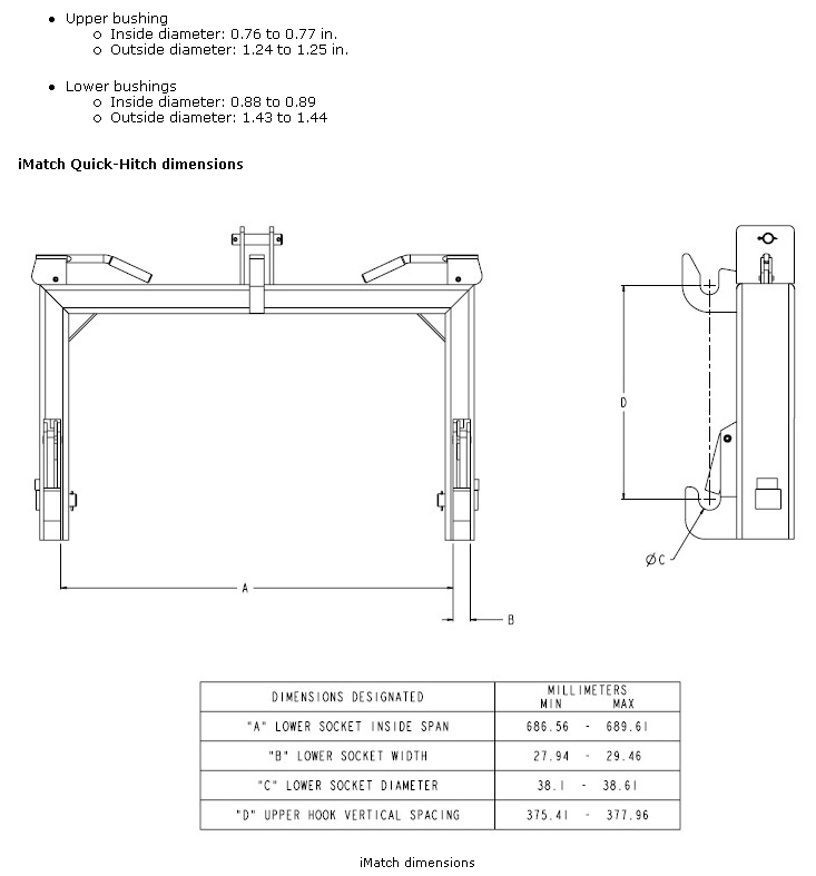
I can not find a dimensional drawing for the HFQH. Here are the dimensions stated on the HF web site:

Inside clearance: 27-1/2". Draw pin adjustments: 18", 19", 20" and 21". Overall dimensions: 30" W x 24" H.

By draw pin adjustments do they mean upper hook vertical position? iMatch hook is welded at 15", see dimension 'D' in attached. If this is correct then the two do not share the same dimensions and therefore one would not be able to interchange attachments without altering the attachment.

I wonder if someone who owns a HFQH could measure and posts all the dimensions shown in the iMatch drawing so we could compare the two side-by-side.
 

Attachments

  • iMatch dimensions.jpg
    iMatch dimensions.jpg
    123.6 KB · Views: 10,237
/ HF QuickHitch vs iMatch #6  
i have both the imatch and the hf one...they both work on everything and my dad has the speeco one and everything we have interchanges just fine...
 
/ HF QuickHitch vs iMatch #7  
The only real problem I've noted with my HF quick hitch is that the top hook (which can be adjusted in height) does not extend very far from the QH frame, leading to potential interferences with implements where the top pin (for the QH) is recessed into the implement frame.

I know this is a little hard to explain and I don't have any pictures, but when I use it on my Frontier BB, the bolts that hold the QH hook onto the QH frame hit the vertical members on the box blade top link framework before the hook can get to the pin. Therefore, I have to use the accessory top link.

I have two explanations for this, both of which I think have some validity. The Chinese designers of the HF QH didn't realize that if they made the top hook an inch longer (front to rear) it would attach to almost anything. (I may add an extension to it myself.) Also, I think the Frontier BB is designed specifically to mate up with the iHitch and not to just any generic QH that meets the standards.
 
/ HF QuickHitch vs iMatch #8  
I've got the Imatch. It fits my tiller from Tractor Supply just fine. No issues.
 
/ HF QuickHitch vs iMatch #9  
Also, in reply to the question above about the HF dimensions, I think the listed dimensions for the top hook are incorrect. With the hook in lowest position, it is 15" above the bottom pins, which is the standard for quick hitches. In the top or next to top position (I can't remember which) it is 18" which is the standard for cat 1 3 point hitch top link pins. (Some implements have the QH pin also at 15", some only have the 18" top link position.) So from that perspective, the HF is compliant with the QH standard and adjustable to work as a quick hitch with implements without a QH pin.
 
/ HF QuickHitch vs iMatch #10  
My HF quick-hitch is cat 1 type for (7/8" dia. pins) but the lower slots accept cat 2 pins(1-1/8" dia pins). So to remove slack I changed my impl.'s from 7/8 to 1-1/8 pins.
 
/ HF QuickHitch vs iMatch #11  
My HF quick-hitch is cat 1 type for (7/8" dia. pins) but the lower slots accept cat 2 pins(1-1/8" dia pins). So to remove slack I changed my impl.'s from 7/8 to 1-1/8 pins.

All Cat I quick hitches are sized to accept larger implement pins. That is how the standard is set up. It's actually sized to accept Cat 3 pins (1-7/16") which is how the quick hitch adapter bushings are made (Cat 1 to Cat 3). That said, a lot of people do just use the Cat 1 to Cat 2 bushings and say it's close enough.
 
/ HF QuickHitch vs iMatch #12  
I think all the quick hitch or Imatch units are like this. You need to purchase adapters for the lower links, or you can do what you did. Take a look:

Quick Hitch, Cat. 1 - 0267563 | Tractor Supply Company

Tractor Supply's quickhitch actually comes with one set of adapter bushiungs. You have to install a set on each impliment you're using. I purchased these adapter bushings from Tractorsupply for my Imatch. They were something like 27.00 a set. So each attachment will cost something to set up. I was a little worried that if I didn't do this at the beginning, I'd risk cutting a PTO too short and wouldn't be able to use a quickhitch later on without buying a new PTO. I think that idea was a little bit unfounded though. My PTO shaft seemed to be just the right length out of the box, to use straight or with the Imatch.

I don't really see any difference between the quickhitch and the Imatch. I think they are the same thing. Although, the quickhitch from tractorsupply might actually be better than the Imatch because the top link is adjustable.

Here's the link to my tiller: CountyLine Tiller, 60 in. - 2127109 | Tractor Supply Company

I really haven't had much of a chance to use it yet. I'm still waiting for the ground to dry up a little more. It seems to be a good unit though. It's about 680lbs. and 5'.
 
/ HF QuickHitch vs iMatch #13  
I have both, and as mentioned the HF model top J-hook bolts interfere with some implements, so I removed the bolts (actually just cut them) and peened them in place, now there is no difference in the dimensional specs between the 2.

I wouldn't put the HF model on a brand new Deere, but not because it wouldn't do the job, I would spend the extra money just for the better looks/color of the imatch.

The HF model is definitely worth the 89. it cost me.

Easter Sunday, 25% off single item at HF. Don't know if you will go to he11 for shopping on Easter Sunday though :eek:


You can see in this pic how I cut the bolts and set them as flush pins,along with some other mods :)

JB.
 

Attachments

  • DSC04312.jpg
    DSC04312.jpg
    772.5 KB · Views: 1,352
/ HF QuickHitch vs iMatch #15  
jb4310- I like your mods on the HF QH. I have one and was thinking of adding that 2" receiver like underneath like you did. MY favorite add on I am gonna do is the tubes to hold the chains like you did! :thumbsup: Is there any changes you would make?
 
/ HF QuickHitch vs iMatch #16  
Really like the other mods! Wish I had access to welding equipment

Well that's how it starts, next you'll be asking for suggestions in the welding forum :)



jb4310- I like your mods on the HF QH. I have one and was thinking of adding that 2" receiver like underneath like you did. MY favorite add on I am gonna do is the tubes to hold the chains like you did! :thumbsup: Is there any changes you would make?

Just make sure the receiver tube wont interfere with any PTO powered equipment you may use. I only have a genny and there is no problem with mine.

The box tube I used is 4x4, I wanted 4x6 but couldn't find any, it only holds about 8-9 ft of 3/8 chain. I'm working on my imatch with the same mods, custom making the box a little bigger, maybe 4x5.

JB.
 
/ HF QuickHitch vs iMatch #17  
Just make sure the receiver tube wont interfere with any PTO powered equipment you may use. I only have a genny and there is no problem with mine.

The box tube I used is 4x4, I wanted 4x6 but couldn't find any, it only holds about 8-9 ft of 3/8 chain. I'm working on my imatch with the same mods, custom making the box a little bigger, maybe 4x5.

JB.

Oh good point on pto shaft. hmm I think I might have issues. I am gonna have to hook my tiller up, I suspect it's too close.

darn! I was hoping a small square is enough for a 20 ft chain. I'll think of something along those lines.
 
/ HF QuickHitch vs iMatch #18  
Oh good point on pto shaft. hmm I think I might have issues. I am gonna have to hook my tiller up, I suspect it's too close.

darn! I was hoping a small square is enough for a 20 ft chain. I'll think of something along those lines.

Yeah someone warned me about the clearance so I tried my genny and had enough clearance in all positions.

If you use 5/16 chain you could fit alot more in there.

JB.
 
/ HF QuickHitch vs iMatch #19  
JB4310, I really like the idea of the flush pins. I was thinking of modifying my hook so it would extend farther back, but that looks simpler. Did you weld the pins in place or are they attached somehow so you can still remove them and raise/remove the hook? I can't tell from the photo.
 
/ HF QuickHitch vs iMatch #20  
JB4310, I really like the idea of the flush pins. I was thinking of modifying my hook so it would extend farther back, but that looks simpler. Did you weld the pins in place or are they attached somehow so you can still remove them and raise/remove the hook? I can't tell from the photo.

If you zoom in you might see where I took a pointy punch and peened the metal around the studs, to jam them in. Can't think of the right term for this.

I might as well of just welded them, cause nothing I have needs the top hook in a different position, but I wanted to be able to move it if ever needed. The more expensive JD imatch has a fixed top hook.

JB
 
 
Top