3-Point Hitch john deere 4410

/ john deere 4410 #1  

sdecurtis

New member
Joined
Aug 28, 2011
Messages
6
Tractor
john deere 4410
my john deere 4410 pto won't work. I connected my friends bush hog. Pulled the yellow knob. the light on the dash illuminates but the pto wont spin. I think it may have something to do with the seat safety. There are a pair of wires black and light blue that are not connected to anything to the left of the rear pto and another pair of the same colored wires to the right side of the pto (behind seat) Is there a harness that connects these two sets of wires? Can I try to run a set of wires from one pair to the other to override the seat ?
 
Last edited:
/ john deere 4410 #2  
I went out to the barn with my camera but did not take a picture. I did not see any wires that were not plugged in anywhere and no wires by the pto. I am sure you must refer the the wires under the seat in the rear on both sides. Did you PTO work in the recent past? Did you go by the operational manual? Was the parking brake set before you turned on the PTO? First try the Operational Manual. The service manual has a troubleshooting check list. Do you have a service manual?- fuseboxer
 
/ john deere 4410
  • Thread Starter
#3  
Thanks for your reply. I purchased the tractor used. For the past four years I have never used the mid or rear pto. This is the first time i have attempted. As for the parking brake i did set the brake and then pull the yellow knob to engage the pto. Unfortunately it still didn't spin. Any other ideas?
 
/ john deere 4410 #4  
The tractor has to have everthing by the book, operators manual period. Once you are shure of that the service manual has a step by step proceedures to check. It may be a relay in the fusebox or a very likely possibility may be a solenoid valve actuator. If you get voltage to the solenoid valve actuator when you pull the switch you get a noise of the actuator. The 4410 I have been lead to believe has a weakness in the wire going to the solenoid, it is exposed and can become broken or unpluged/disconnected at the solenoid. Many have had the problem----Fuseboxer
 
/ john deere 4410
  • Thread Starter
#5  
thanks. Do you have or know where I can obtain a diagram of the solenoid I am trying to troubleshoot?
 
/ john deere 4410 #6  
thanks. Do you have or know where I can obtain a diagram of the solenoid I am trying to troubleshoot?

JD dealer has a CD shop manual. Sometimes a better deal may be on ebay. Use a search engine on our TractorByNet for your deere I believe someone posted a diagram. For me to make links or copies from my cd shop manual would be very hard for me. - - Fuseboxer
 
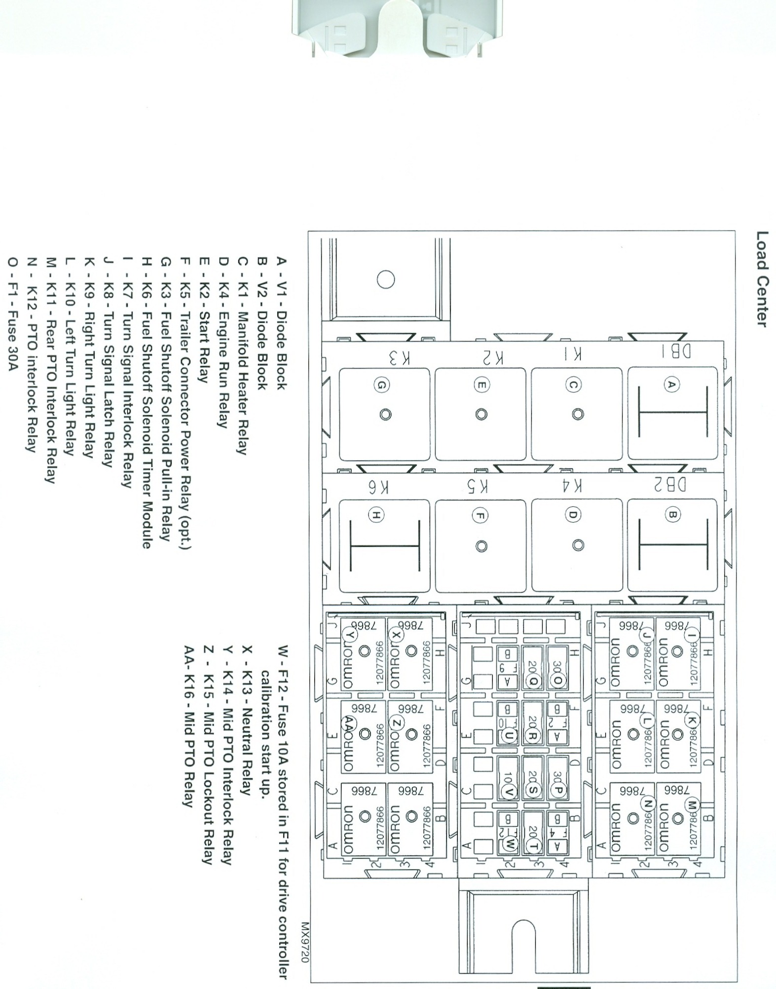
/ john deere 4410 #7  
Very rough tranlation from my JD shop manual. I had to print in b/w did not use the expensive color and then scan into a file. Hope this helps. Lot of work. Hope the uploads worked. ----Fuseboxer
 

Attachments

  • P234.pdf
    359.9 KB · Views: 441
  • p244.jpg
    p244.jpg
    481.4 KB · Views: 13,926
  • P243.pdf
    359.9 KB · Views: 405
  • p245.jpg
    p245.jpg
    769.9 KB · Views: 4,104
  • p246.pdf
    35 KB · Views: 414
/ john deere 4410 #8  
like fuserboxer said use your search engine, i got my service manual for 10 bucks as a pdf download.

good luck.

earl.
 
/ john deere 4410
  • Thread Starter
#10  
Today I traced all of the wiring. I also tested the fuses. It appears that the solenoids are all ok. I did notice that when I spin the mid pto by hand it spins freely. If I try to spin the rear it turns about half turn then stops. I can then spin it back counter clock and again it stops. Is this the way it works? Maybe my problems are mechanical? Of the three solenoids which is the rear pto?
 
/ john deere 4410 #11  
Go by the service manual. The weak point that has been a problem is the power wire where it attaches to the solenoid actuator it is exposed underneath the tractor and gets stretched/broke/disconnected. Do you have the parking brake set and the trans in netural that is required proceedure by the operators manual? When you pull the switch does it show on the dash a light? Do you hear a click in the fusebox relay? Can you hear a noise of the solenoid actuator trying to work or is there nothing? These are possible clues. The service manual has step by step proceedures. I suspect loss of power at the actuator. ----Fuseboxer
 
/ john deere 4410
  • Thread Starter
#12  
I put the brake on, put it in neutral, pull the yellow knob, the dash light goes on but I dont hear any relay noise. Maybe the relay is gone? I think those are in the fuse panel? Do you know which one controls the rear pto? Is there any way to test the relay to make sure it is functioning? Does your tractors pto turn by hand freely?
 
/ john deere 4410 #13  
I had a similar problem. It turned out to be one of the black relays in the fuse box.
 
/ john deere 4410 #14  
I put the brake on, put it in neutral, pull the yellow knob, the dash light goes on but I dont hear any relay noise. Maybe the relay is gone? I think those are in the fuse panel? Do you know which one controls the rear pto? Is there any way to test the relay to make sure it is functioning? Does your tractors pto turn by hand freely?

If the light goes on the dash the relay is probably working but the wire to the actuator solenoid is where I would check. First do a quick check the top right corner of the fuse box and the relay one under control power to the PTO. Switch relays with the two to the left, all same part number. Now you have two different but the same relays controling the power to the rear PTO. I still think it is your solenoid actuator under the tractor, check power, wire is w/o a complete circuit. No power to the actuator. You need to go by the service manual.
 
/ john deere 4410
  • Thread Starter
#15  
Thanks again fuse boxer! If I understand you correctly the black relay farthest to the right is the one for the rear pto? Switch it out with one from the left? I assume these unplug and plug back in? Next question how do I distinguish which solenoid controls the rear pto? There are three under the right rear tire, they all have the same colored wires going to them. How do I test to make sure power is getting to it? Lastly when I turn the rear pto by hand it turns a bit then flunks does this sound right? The mid pto spins freely with no clunk is this right? As always thanks for your input.
 
/ john deere 4410 #16  
This is my last time I will make copies out of my service manual. You need to pay a little money and buy your own. :)
 

Attachments

  • fusebox.jpg
    fusebox.jpg
    428 KB · Views: 7,731
  • p120.jpg
    p120.jpg
    984.5 KB · Views: 4,008
  • p289.jpg
    p289.jpg
    891.4 KB · Views: 1,698
/ john deere 4410 #18  
I don't know about your 4410, but my 4210 has two pto knobs. If your mid pto knob is pulled, the mid pto will run when you pull the rear pto knob. If the mid pto knob is not pulled, and you pull the rear pto knob, the rear pto runs......

my john deere 4410 pto won't work. I connected my friends bush hog. Pulled the yellow knob. the light on the dash illuminates but the pto wont spin. I think it may have something to do with the seat safety. There are a pair of wires black and light blue that are not connected to anything to the left of the rear pto and another pair of the same colored wires to the right side of the pto (behind seat) Is there a harness that connects these two sets of wires? Can I try to run a set of wires from one pair to the other to override the seat ?
 
/ john deere 4410 #19  
is your 4410 an ehydro ? how are you checking your fuses and relays ? i just purchased a manual on CD off of ebay myself,waiting on it to get here.you will have to verify the electrical circuit's integrity.if you are just trouble shooting with a test light,it could lead you to believe the circuit is good,when it is actually bad.a DVOM is the best way to check it to make sure the circuit is getting the correct power and also to verify the ground too.a test light will light with as little as 5 volts.relays should be tested for correct operation,i have seen them do some pretty strange things.power and ground checks are not enough.the relay is mechanical too,so testing it for proper operation is a must.if your machine is ehydro,the seat interlock safety switch also is wired to the trans to where if you raise off the seat,the tractor will stop or won't move as it interrupts the forward/reverse pedals as well.to test the circuit,you will have to jumper the seat switch or have someone sitting in the seat as you verify the circuit. nothin's simple eh ?
 
 
Top