Box blade

/ Box blade #1  

kvan

New member
Joined
Oct 11, 2011
Messages
16
Tractor
Ford 8n
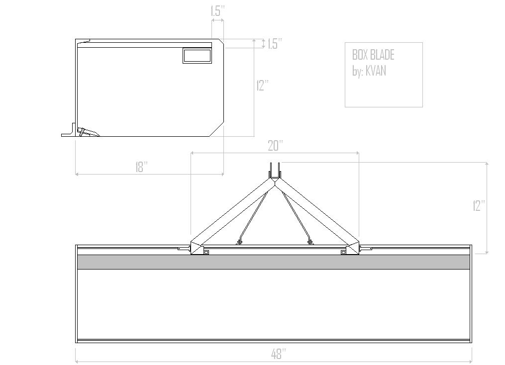
I am going to build a box blade for my 8n, I have a 48" x 12" channel iron section to make the back and 12"x18" plate for the sides. I would like to put rippers in it eventually. I enclosed a plan of what I am thinking I would like to make, but suggestions are appreciated.

Kyle
 

Attachments

  • box plan.JPG
    box plan.JPG
    41.7 KB · Views: 2,841
/ Box blade #2  
1. Try to make it wider. It should be at least as wide as the tractor.

2. Make the hitch dimensions standard. You might want a quick hitch someday.

Hitch dimensions
 
/ Box blade #3  
It's easier to start off with the right hitch dimensions to lessen the hassle later on if you happen to find some other 3ph tool at the right price etc etc.

Having just made my own box blade I was very happy with having made it 7' wide--roughly 6 inches wider than the tires on both sides of my little IH. At first I wasn't sure that it would pull it, but it does just fine. There are two main factors that I can see to making it up to a foot wider than your tires, one is you can reach areas with it that you do not want to place your tires such as the very edge of the road or the slough-off from the encroaching hillside/cutbank. The other is when you want to angle the box to cut in ditches, which are usually as far to the inside of a road as you can possibly get.. having a box 6-12" wider places the box at or just outside your tire at an angle so you don't have to straddle the ditch which is impossible in many cases.

If you're looking to just flatten off some ground the 4' will do just fine.. it'll just take twice as many passes. Oh, and the more weight there is the better if you have float only in the down position like my old tractor.
 
 
Top