House Construction - Best value and working with a bulder/s???

   / House Construction - Best value and working with a bulder/s??? #41  
I wonder if anyone who designed a nice floor plan would care to share a simple draft here in the forum? We've been wrestling with designing a new home for our 110 acres and it's been somewhat of a puzzle. I'm looking for a single floor layout, under 3000 sq ft, with a gameroom and attached garage. It seems most of the plans one can pull up online are cookie-cutter and just don't get me too excited.

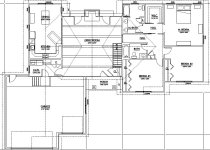
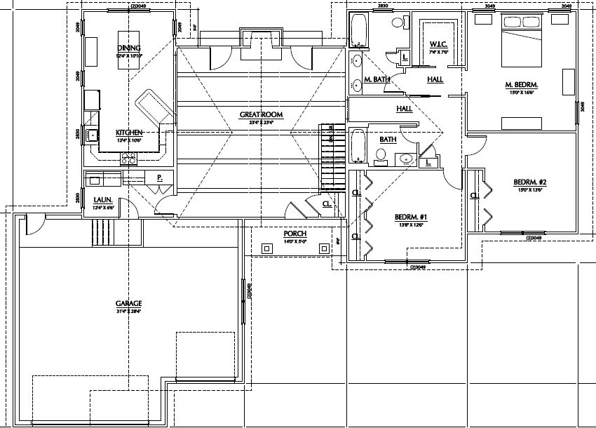
Here is what w just finished. 1800 sq feet. 2 bath, 3 bedrooms, full 1800 sq ft basement, 3 car garage/shop. We downsized as we are now past kids, etc.

In hindsight, I would have made a few changes:

1) Made the kitchen about 2' wider and longer.
2) Shifted entire bedroom areas (everything off the bedroom side of the great room) 2', creating a dead space where mechanicals could have been run. I ended up having to use some of one bedroom's closet for return air because of the location of beams in the basement. Having that 2' space and running all mechanicals up would have been so much nicer.
3) Basement bilco doors.

072712 Kappeler Revised Floor plan.jpg
 
   / House Construction - Best value and working with a bulder/s??? #42  
$180 sounds pretty high to me, but maybe not if you want something fancy.

Then there's the modular option. Built like a MH, a little more flexibility in design. The local factory doesn't build them for Oregon because Oregon inspectors can't be depended on to show up at the factory when needed, so they might have to stop the production line to wait for an inspector. But they build homes for Washington in the same plant and Washington inspectors show in the Oregon plant when needed. I understand that modulars are more common in the east, so you might want to look into them. Here, modulars are listed in the property records as a site built house.

What is the name if this place? As I live in the Pacific North-Wet, this sounds interesting to me.

Thanks
JTT
 
Last edited:
   / House Construction - Best value and working with a bulder/s??? #43  
I knew I forgot to mention our hallway used to display all the suits of armor! ;)

A man's home is his castle. :laughing:
 
   / House Construction - Best value and working with a bulder/s??? #44  
tkap - like your plan - thanks much. Care to share a pic of the exterior?

Anyone else with some nice floor plans?
 
   / House Construction - Best value and working with a bulder/s??? #45  
A couple things to think about:

Professional designs can have problems. We bought existing plans from a local outfit, but as it turned out no one had yet built the design--it was new. When the house was under construction and when it was too late, the builder found a dimensional error--room sizes added up to 1 foot longer than the exterior dimension and it was the rooms that had to give. That shouldn't happen today with computers to design houses, but computers were just beginning to be used back then. I suppose we could have sued the architectural firm for the cost of redoing the foundation, but our old house was sold and we wanted to get moved. The builder completed the house in 83 days, ground breaking to move-in; a lawsuit might have tied us up for years.

You can buy software to design your home and one neat thing about that is you can see what each room looks like, you can virtually walk thru the house. A friend did this and he ended up with a very nice house. I don't know what he did about printing construction plans or getting the plans thru the county, may or may not have been a problem.

We painted both our present and our previous houses when they were being built. Previous one was single story, easy to paint or repaint. Present one is 2 story, a bear to paint, moving a very tall unwieldy ladder every few feet. I won't paint a 2 story house again.
 
   / House Construction - Best value and working with a bulder/s??? #46  
We painted both our present and our previous houses when they were being built. Previous one was single story, easy to paint or repaint. Present one is 2 story, a bear to paint, moving a very tall unwieldy ladder every few feet. I won't paint a 2 story house again.
Around here, $160ish gets you a 30' manlift for the day. That's much faster, easier and safer than using a ladder.

Aaron Z
 
   / House Construction - Best value and working with a bulder/s??? #47  
tkap - like your plan - thanks much. Care to share a pic of the exterior?

Anyone else with some nice floor plans?

This post from my thread New Home Begins has some pictures of inside and out. It's a pretty good representation. There are lots of pictures throughout the thread.
 
   / House Construction - Best value and working with a bulder/s??? #48  
When hiring a builder, or anybody, the biggest mistake I see over and over again is not talking to multiple builders. Everyone seems to know that you need to talk to several builders before hiring one, but in every case that I've been hired to fix what went wrong, they hired a friend, or a friend of a friend on one recommendation, or they just hired the first guy they called and liked. Liking your builder is a nice perk, but personality doesn't get the house built, and it doesn't mean he will do a quality job or even stick around to finish it.

The other thing that I see is an unrealistic time frame to get started. If you want to hire me for a job, you will have to wait at least three months. I've had clients wait as much as six months, but that's rare. Anybody who can start right away should set of red flags. Why isn't he already busy? and if he is busy, how much time will he have for your job?

Which brings up the big time contractor who has multiple jobs going on at the same time. I like to do one job at a time, but that limits me in how much money I can make. Of course, it also means I can charge a premium and work at my own pace to make sure the client gets exactly what they want. Those doing multiple jobs have lots of people working for them, some good, some brand new and clueless and some that are terrible. You just never know who is going to be working on your house, or what they will do or hide from you.

I would suggest talking to at least five contractors before hiring one. Trust your gut, if you don't have a positive feeling or something left you with a hint of doubt, keep looking. DO NOT hire somebody and "hope" it will get better or he knows more then you and in time it will all work out. A good contractor can explain the pros and cons of every step of the process and will give you options on different ways to do it. One story compared to 2 story. Slab compared to pier and beam. open concept, bedroom placement, bathroom arrangement all have options. What works best for you isn't the same that works best for his other clients.

I read a few years ago in a home building trade magazine that the top 20 home builders in the country all said that 1/3 of the cost to build a house was in materials. The rest is in labor and fees. Cutting those costs is where they make their profits, so using cheap labor instead of skilled craftsman is how they build a lot of houses for as little money as possible and then can sell them for a profit. You cannot compare the cost of a house built in a development to having one built for you on your land as apples to apples. Just the process of figuring out what you want for trim and how you want it finished out costs way more because it's what you want and how you want it compared to what you get when the contractor has 30 guys doing the same thing with the same materials in every house, day after day.

Cost to build the shell is one thing, but where you will spend more then you thought possible is in the finished product. Cabinets, flooring, counters, fixtures all add up real fast. Reason and discipline to the budget tend to fall apart when you find that light or doorknob you really want, but it's four times what the budget calls for. LOL

The most cost effective house is going to be a rectangle. Think of a mobile home. Nobody builds a house for less per square foot then a mobile home. Once you start modifying the rectangle shape of your house, the cost increases. How much can you afford, what do you have to have compared to what you want to have is what decides how much your house will cost more then anything else.

Eddie
 
   / House Construction - Best value and working with a bulder/s??? #49  
I would suggest talking to at least five contractors before hiring one. Trust your gut, if you don't have a positive feeling or something left you with a hint of doubt, keep looking. DO NOT hire somebody and "hope" it will get better or he knows more then you and in time it will all work out. A good contractor can explain the pros and cons of every step of the process and will give you options on different ways to do it. One story compared to 2 story. Slab compared to pier and beam. open concept, bedroom placement, bathroom arrangement all have options. What works best for you isn't the same that works best for his other clients.
Thats how I hired my heating guy (hot water heat with an oil boiler and a wood boiler tied together, needed some maintenance done and to add heat to the upstairs bedroom). I got along with him, he was able to tell me something that I didn't know about my system and I didnt have to explain to him how it worked.

Aaron Z
 
   / House Construction - Best value and working with a bulder/s??? #50  
Some additional thoughts.

You need a contract to work with a contractor. When it came time to build our house 8 or 9 years ago, I was amazed at the contracts that various contractors proposed. There was almost nothing in them to really specify many details about the house. I had architect's drawings, but much of these where what I would consider generalities.

One area where I was bitten pretty hard was in specifying concrete. They specified concrete psi, rebar number and thickness, finish roughness, etc. but what they didn't specify was flatness of slabs. Before the house was dried in, there was a lot of rain, and the slab for the downstairs floor turned out to have a 1 1/2" deep puddle almost everywhere. The edges were at the right grade, but the concrete guys did not use grade stakes, and the rest of the floor was dished. This probably meets commercial standards, but was not what I wanted. Live & learn. Now, I either do a slab myself or specify the number of square feet of puddles any 10 square foot section can hove and how deep they can be.

These days I would specify permissible slope of floors, both concrete and framed, both end to end, and at intermediate areas ( think waviness), top of windows all at the same height above the floor +/- 0.25" for adjacent windows, +/- 0.5" for the whole house. Walls must form square corners +/- 0.5 degrees, walls must be vertical +/- 0.25 degrees, etc. Notice, a specification without a tolerance does you no good.

Another big sore point can be how much time the contractor actually spends on your job. Get it in writing. Most of the actual work is done by subcontractors who are working with cheap labor and as fast as they can. These guys need to be supervised by your contractor, or by you the owner. If your contractor won't agree in writing to spend at least 10 hours per week at your job site, not just working on your project, get someone else.

We had a construction loan, and even if you can afford to pay cash for the house, a construction loan with a local bank is good to have. If you want to pay it off very early, that is OK. Our bank sent an inspector out to look over the house about once a week, and had a list of recommended contractors we interviewed. The bank was also very familiar with the laws regarding mechanics liens and material supplier liens. They made sure the contractor kept everything kosher on the legal end. They had a standard "release of all liens" form which every supplier and subcontractor had to sign before they got paid. The contractors knew they got a lot of business from bank recommendations and wanted to cooperate with the bank.

* * * * *

If you intend this to be the last house you are ever going to live in, there are some very uncomfortable things you need to address. 36" doors and walk-in showers are a start, but you need to go quite a bit further. At least one toilet on each floor has to have enough room around the toilet for both a patient in a wheel chair and an attendant. Similarly, at least one walk-in shower needs room for a patient and an attendant. You don't have to put up a sign saying this is what you have done, but the feature has to be there.
 

Tractor & Equipment Auctions

2013 UTILITY VS2DX DRY VAN TRAILER (A54607)
2013 UTILITY VS2DX...
2020 Exmark ECX180 21in Push Mower (A52377)
2020 Exmark ECX180...
UNUSED WOLVERINE SBM-12-72W 72" HYD SICKLE MOWER (A54757)
UNUSED WOLVERINE...
Texas Post Driver Series 500 Heavy-duty Hydraulic Post Driver (A53473)
Texas Post Driver...
2023 54' Hooklift Dumpster 15 Cubic Yard (A53422)
2023 54' Hooklift...
2022 GORILLA  20FT EQUIPMENT TRAILER (A54607)
2022 GORILLA 20FT...
 
Top