Aquamoose
Platinum Member
I decided to build a tree puller and wanted to buy a blank mounting plate for use on both ends of my tractor. Is there ANYTHING that's on the market like this?
I decided to build a tree puller and wanted to buy a blank mounting plate for use on both ends of my tractor. Is there ANYTHING that's on the market like this?
Got a picture?
I built a land plane with SS on the back & 3pt on the front, but I'm guessing that you have only 1 "side" to work with.
That brings me to a 3pt to SS adapter I made.
View attachment 549447
I've never seen a "dual" set up will take either one, doesn't mean it's not out there.:thumbsup:
I modified my Land Pride forks to both fit my SSQA FEL and it's 3PH. It's not QA-compatible though, due tom having the 3PH lift arms clear the SSQA attachments on the tractor
That is rather clever. Doesn't it really suck using SS stuff backwards though?
Call and ask if they will build you a plate for both ends: Buckthorn Puller - Custom built Skid Steer attachments to fit almost any need you may have.I decided to build a tree puller and wanted to buy a blank mounting plate for use on both ends of my tractor. Is there ANYTHING that's on the market like this?
Certainly not picking on the OP's original intent at all.
If I have the capability to build a puller, adding the SSQA part would be very easy. So why buy a plate that I then have to adapt to my puller design?![]()
--------------------------------
It痴 partly so I won稚 have to fiddle with the fitment and the ability to notch the bottom holes & bend the top catch plates. Figured I could 吐ast forward things a bit.

Could you clarify this? (It fits your SSQA FEL but it is not QA-compatible) thanks.
Walmart in the states carries everything. Thats awesome. You would never see anything like that in walmart in Canada
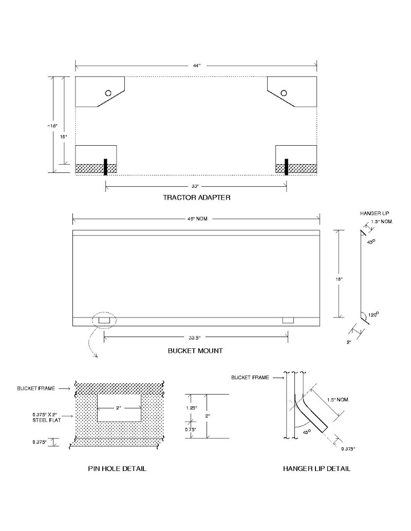
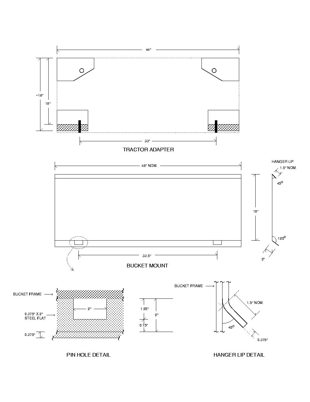
No bending needed if you start with a square tubing frame. This is how they built my stump bucket:
View attachment 549526 View attachment 549527
And the dimensions:
View attachment 549535
View attachment 549530