House for my Parents

   / House for my Parents #41  
Great home design. Your parents should be happy with it. Only thing I will add is putting something similar to txdon's insulation package. It amazes me how low his heating and cooling cost are.
 
   / House for my Parents #42  
Eddie, great plan.....my advice would be to think STRONGLY about outfitting it fully for handicap assist...means, ramps not steps, wide doors EVERYWHERE, particularly bathroom...extra room in bathroom for wheel chair, grab bars everywhere, higher potty seats, automatic lights in closets (old eyes need more light), things like being able to get into house from car without wading thru mud, water or getting rained on helps avoid falls. there are lots of considerations for older folks and you will enjoy planning them.....They may not need these things right now, but best to be prepared. Everything you can do to keep them safe now, fall free and accident free will improve their quality of life and yours for years to come. My mom passed at 95 and dad at 98 with no falls that broke bones...some falls, yes, but none disastrous ones. Good luck...and I know you will keep us posted as to progress.
 
   / House for my Parents #43  
Dad was working on the trench for the electrical line from the meter to the house. I marked where it needed to go, and he dug!!

Yesterday, he picked up wire, conduit and rebar.

Eddie, your dad has always been no stranger to work. You couldn't hire a helper as good as he is. He may be a bit rough on equipment, but he sure has a "get-r-done" attitude.:thumbsup:
 
   / House for my Parents
  • Thread Starter
#44  
I joke that my parents are Mules!!! Both just keep on going and going. Mom grew up rough in Northern Saskatachawan. Now power, outdoor plumbing and out in the middle of nowhere on a dirt poor farm. Dad grew up all over Canada with his Dad working for the railroad. They have a can do attitude that I really admire.

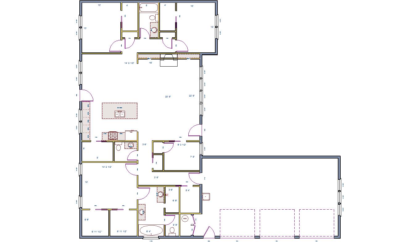
I'm made a few small madifications to the plan. I changed the garage doors from a 9 ft and a 18 foot to three 8 ft doors. No real advantage either way, but I started to think the smaller doors would look nicer.

I moved the front door to the HVAC/WH room back a bit. While laying out the forms, it seems kind of large with a lot of depth that I didn't need. Now I'm thinking it will be a good space for a rack with wheels on it to sit. Easy to move out of the way when we need to get in there, but a better use of space this way.

I added the missing toilet to the master bathroom.

I was looking at fireplaces and built in shelving on Houzz - Home Design, Decorating and Remodeling Ideas and Inspiration, Kitchen and Bathroom Design and got to thinking that I wanted the shelving to be built into the wall and for the front of the fireplace to be flat on the wall. Kind of a cleaner look with the same amount of floor space.

Thank you,
Eddie
House Plan.jpg
 
   / House for my Parents #45  
Any plans for future use? Parents aren't going to live forever.

mark
 
   / House for my Parents #46  
Eddie,

That is a nice plan and I am sure you will do a great job:thumbsup:.

I designd our house as one level with a full basement. Top level is 1900-2000 sq ft. Since we felt this would be our last house I made all the doors wheelchair accessible, put levers on the doors instead of knobs and the walkin shower in the master bath is wheel chair accessible with a built in bench.

I plan to follow your process and progress:)

David
 
   / House for my Parents #48  
I think all three 8' ohd's could be a mistake: 2013 Ford F-150 | View Exterior Specifications | Ford.com shows an F-150 has an outside width of 97" including mirrors.

The shelves beside the fireplace gives the built-in look, I like that. Clean lines.

Was thinking the same thing. If you put an ohd opposite the large door it sure would make it easy to pull thru the garage and have better access.

I sure like the floor plan he has come up with. It would work really well for me to cut off the additional BR's and expand the garage - wider and longer and with doors on both sides.
 
   / House for my Parents
  • Thread Starter
#49  
Garage doors are 9 feet wide. My mom will use one bay for the Kawasaki Mule. It is her favorite toy and she is out driving around on it every day. The other bay will be for her Ford Taurus, which I'm sure she will replace in the next couple of years with another mid size sedan of some kind. The third bay will be used for their Ford Explorer. 9 ft garage doors are very standard, and affordble. Going bigger would become special order, and I don't think worth the expense.

Eddie
 
   / House for my Parents #50  
... I changed the garage doors from a 9 ft and a 18 foot to three 8 ft doors. No real advantage either way, but I started to think the smaller doors would look nicer...

Eddie:

I seldom disagree with you, but this is a mistake. I have a friend who did exactly this (3 - 8 ft. doors instead of a double door and a small one. Just are you are thinking, he did it for looks. At the time I suggested he not do this, but he did it anyway, and now his wife refuses to part her car in the garage because she hit the door once, and it requires a lot of care to get it in under the best of circumstances.

As your folks get older their driving is not going to improve. Think hard about that. I have a 9 foot door into one garage bay and have a hard time getting my F 250 into that one. It fits, but the accuracy requirement is tougher than you might think.

I would put in an 18 foot door and then an 8 footer for a small car, a quad or a golf cart. If you really must have the "look" of three 8 foot doors, paint the 18 footer to look like two smaller one when it is closed.

The other thing to think about is a handicap ramp from the house into the garage. You don't have to be in a wheelchair to really appreciate being able to easily get into the garage and then into a car, without going out into the weather. Especially if you walk slow, and are slow to get in and out of the car.
 

Tractor & Equipment Auctions

25077 (A51694)
25077 (A51694)
JOHN DEERE 437E KNUCKLE BOOM LOADER (A52705)
JOHN DEERE 437E...
2002 Genie S-125 4x4 125ft Telescopic Boom Lift (A52377)
2002 Genie S-125...
2014 Dynapac CC4200 Tandem Vibratory Roller (A52748)
2014 Dynapac...
Sakai SW880-1 (A47477)
Sakai SW880-1 (A47477)
2006 NEW HOLLAND L185 SKID STEER (A52705)
2006 NEW HOLLAND...
 
Top