It's been over a year since anyone has posted on this thread but hopefully some people are still around. I'm considering matching up a Bradco 609 or 611 with my Kioti DK45S, I'm hoping someone has some pictures and ideas for a subframe. The DK45S was only made a few years starting around 2005, I'd really like to see some photos of the tractor with a subframe whether it's DIY or from one of the manufacturers.
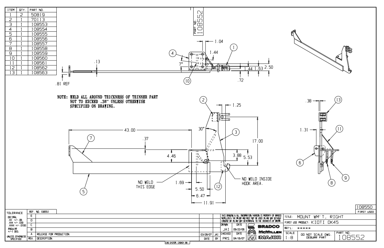
I called Bradco to see if I could get a subframe from them and they do make (or did make) a subframe for my machine but it's made for the KL1590 Loader and I have the KL451 Loader. Additionally, the Bradco Rep. said that procuring the subframe would be expensive, around $4K-$5K. He sent me the part numbers I would need and drawings of the subframe for the KL1590:
108550 TR Half Kit
108565 BH Half Kit
Excellent thread btw, thanks for all the info DFkrug.
View attachment 603835View attachment 603834
I don't remember the details of who makes/made what for whom, but Amerequip was a big OEM producer for MANY brand names a couple of decades ago.
Bradco may have been one of them, I *KNOW* that John Deere was and probably still is.
Point is it may be worth checking into Amerequip for hoes and sub frames.
