hydro problem

/ hydro problem #1  

crazy man

Member
Joined
Aug 21, 2019
Messages
28
Tractor
bobcat 331 excavator
I was working my Bobcat 331D excavator for a neighbor. When finished I had to back down a gravel drive about 60-70 feet cross the road to my property. when I got to center of road I discovered I blew a hose, lots of oil on road. I had to get off road barely made it. After removing belly pan I found three hoses with wire mesh showing so I replaced all three. After filling hydto tank swing circuit, and front blade don,t work, boom works, and boom arm works, bucket seems a little slow any input would be appreciated
 
/ hydro problem #2  
Since problem occurred after replacing the three hoses My first thought is that you may have connected a couple of hoses to wrong port or worded another way crossed a couple of the hoses .
 
/ hydro problem #3  
While some people are ok with stuff that happens, I would also wonder where all that fluid went and how your going to clean it up if the land owner complains.
David from jax
 
/ hydro problem
  • Thread Starter
#4  
While some people are ok with stuff that happens, I would also wonder where all that fluid went and how your going to clean it up if the land owner complains.
David from jax
lots went on road, oil dry cleaned up pretty good and I own land it's sitting on. some on neighbor's sand gravel drive he's ok with that
 
/ hydro problem
  • Thread Starter
#5  
Since problem occurred after replacing the three hoses My first thought is that you may have connected a couple of hoses to wrong port or worded another way crossed a couple of the hoses .
I did one at a time, took it off went to town got it put it on, then found another possible leaker, same with third. I'm wondering if I over heated pump, it bus bucking and barely moving for maybe 10-15 feet
 
/ hydro problem #6  
I did one at a time, took it off went to town got it put it on, then found another possible leaker, same with third. I'm wondering if I over heated pump, it bus bucking and barely moving for maybe 10-15 feet
Does that machine have two pumps each supplying oil to a separate valve stack? If yes are all of the functional features on the same valve stack?

Might be possible one of the pumps isn’t moving oil now.
 
/ hydro problem
  • Thread Starter
#7  
Does that machine have two pumps each supplying oil to a separate valve stack? If yes are all of the functional features on the same valve stack?

Might be possible one of the pumps isn’t moving oil now.
first thanks for any help. I know very little of Hydraulics but I'm a ok mechanic. I have parts manual and service manual, it is a two pump system, a gear pump and a piston pump. the port on pump controlling swing, blade and boost valve is on gear pump. I have no test equipment to test flow rate, only thing I could do is check line to see if I have oil in it. service manual tells and shows how to rebuild looks fairly simple. Both pumps seem fairly easy, O-rings ,seals etc. I think I can handle that, it's just determining thats my problem. everything I learned about hydraulics I learned in two days from service manual since I broke down
 
/ hydro problem #8  
Do you have the capability to attach a copy of the hydraulic schematic. That might help with some suggestions on possible diagnosis or things to check.

Gear pumps rarely just suddenly stop working but never say never..
 
/ hydro problem
  • Thread Starter
#9  
Do you have the capability to attach a copy of the hydraulic schematic. That might help with some suggestions on possible diagnosis or things to check.

Gear pumps rarely just suddenly stop working but never say never..
 
/ hydro problem
  • Thread Starter
#10  
I don't know if I know how to send schematic but I'll do some research on that. I took off hose on manifold end from port that supplies oil to functions I'm missing and no oil coming out isn't that telling me pump isn't pumping?
 
/ hydro problem
  • Thread Starter
#11  
I don't know if I know how to send schematic but I'll do some research on that. I took off hose on manifold end from port that supplies oil to functions I'm missing and no oil coming out isn't that telling me pump isn't pumping?
I'm an old man, ain't very computer savy but here goes
 
/ hydro problem
  • Thread Starter
#12  
let me know if you get this and if it helps
 

Attachments

  • Image.jpg
    Image.jpg
    2.2 MB · Views: 93
/ hydro problem #13  
let me know if you get this and if it helps
Crazy
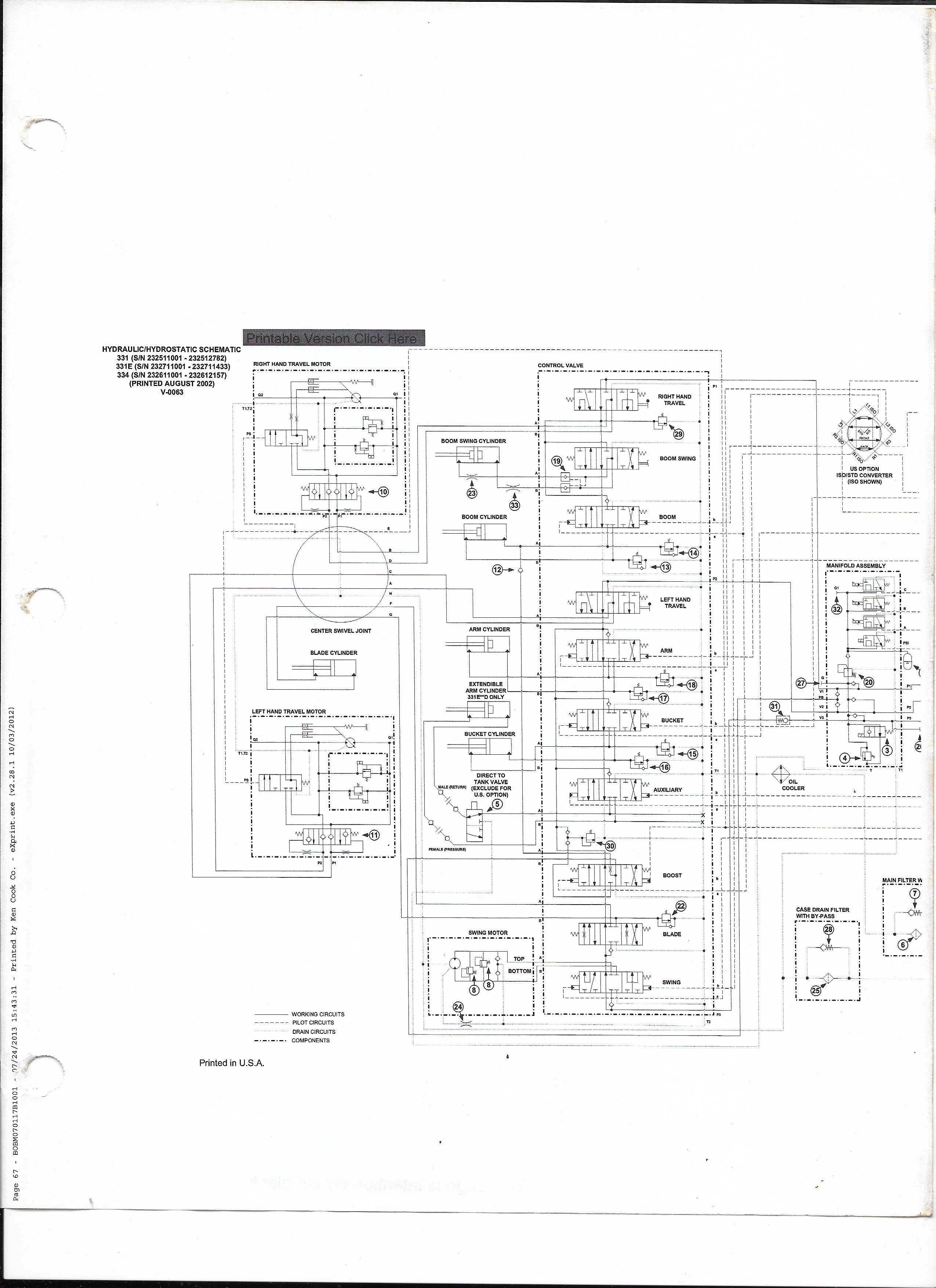
I totally understand not being computer savvy since have the same problems. Schematic doesn’t show the pumps so not sure Which line P2 or P3 is the circuit you opened to check for flow? Both of these are unloaded to tank via valve 3.

Are all the functions in question operated by the same joystick? Did you replace any hoses going to the joystick or were all the hoses you replaced going from valve to a function?
 
/ hydro problem
  • Thread Starter
#14  
Crazy
I totally understand not being computer savvy since have the same problems. Schematic doesn’t show the pumps so not sure Which line P2 or P3 is the circuit you opened to check for flow? Both of these are unloaded to tank via valve 3.

Are all the functions in question operated by the same joystick? Did you replace any hoses going to the joystick or were all the hoses you replaced going from valve to a function?
didn't replace any joystick hoses,but heres food for thought. here is my pump, outlet one- I have right hand travel, boom works, pump outlet two- I have left hand travel, arm and bucket work, pump outlet three no swing or blade. then it says pump outlet two and three are combined for auxilary hydro flow. Is auxilary meaning the thumb? if so doesn't that verify my hoses are corect
 

Attachments

  • Image (2).jpg
    Image (2).jpg
    5.3 MB · Views: 69
/ hydro problem #15  
Per the schematic P3 supplies swing, blade & boost. Then the P3 power beyond combines with P2 downstream of left travel. This then feeds auxiliary, bucket and arm. This allows you to travel and move bucket or arm simultaneously or swing and bucket or boom.

I agree the pump connections appear to be correct.

If you disconnect the hose on P3 and no oil comes out when engine is turned over certainly would point towards the gear pump not turning. Does your manual show a parts breakdown on that pump assembly? Curious what type of drive coupling is between pumps 2 and 3.
 
/ hydro problem
  • Thread Starter
#16  
Per the schematic P3 supplies swing, blade & boost. Then the P3 power beyond combines with P2 downstream of left travel. This then feeds auxiliary, bucket and arm. This allows you to travel and move bucket or arm simultaneously or swing and bucket or boom.

I agree the pump connections appear to be correct.

If you disconnect the hose on P3 and no oil comes out when engine is turned over certainly would point towards the gear pump not turning. Does your manual show a parts breakdown on that pump assembly? Curious what type of drive coupling is between pumps 2 and 3.
when I loosened P3, my wife was watching and couldn't see the bottom of hose to see if it leaked so late yesterday I disconnected P3 completely and cranked over engine and it pissed like a big dog, so I was mistaken about flow. I have a retired mechanic coming Sunday. I will keep you informed. Between you and manual I learned a lot. thanks much, plus I learned how to scan and send documents. you are my new best friend! will let you know what I find out
 
/ hydro problem #17  
Well if you have flow that answers the pump question

Next is why those functions quit. Are they all on the same joystick? Do any of the junctions on that joystick work? Reason for asking is valves are hydraulic pilot controlled by joystick. Just wondering if you possibly lost pilot pressure to that joystick. There is a manifold assembly with ports A, B, and C controlled by 3 individual solenoid valves. I am 99% certain they are pilot pressure lines that feed the joystick but the joysticks are not shown on the schematic you attached. If one of those valves is not shifting it would prevent pilot flow from getting to that part of the circuit.

Just tossing out ideas on what might cause the problem you are experiencing.

Wish you the best in resolving this problem
 
/ hydro problem
  • Thread Starter
#18  
Well if you have flow that answers the pump question

Next is why those functions quit. Are they all on the same joystick? Do any of the junctions on that joystick work? Reason for asking is valves are hydraulic pilot controlled by joystick. Just wondering if you possibly lost pilot pressure to that joystick. There is a manifold assembly with ports A, B, and C controlled by 3 individual solenoid valves. I am 99% certain they are pilot pressure lines that feed the joystick but the joysticks are not shown on the schematic you attached. If one of those valves is not shifting it would prevent pilot flow from getting to that part of the circuit.

Just tossing out ideas on what might cause the problem you are experiencing.

Wish you the best in resolving this problem
 
/ hydro problem
  • Thread Starter
#19  
that's same thing mechanic told me to check. He says all of these solenoid's should be energized when key is turned on, and to check with screwdriver to see if its nagnetized. But many years ago my high speed travel worked some time, I didn't know much about it. The switch that kicks into high is on blade lever so I knew it might be something electrical. So I seen these solenoids and was checking for power, very hard to reach plugs and somewhere along the line I think I got two Plugs mixed because there is a switch on right joystick it keep pressure on thumb and push to release and it was backward when I tried, keeps pressure on release. didn't really care it grabbed good without that function. So that makes me wonder if all should be energized when key is turned on. I checked yesterday and two seemed hot and others were not, I think not sure yet. anyhow high speed travel has a microswitch on throttle cable. the life of keeping dirt under fingernails
 
/ hydro problem #20  
Where you in the area of those valves when you changes those hoses? Just wondering if you could have maybe pulled a wire or connection slightly while doing the replacement. I suspect it was a case of you can see the fitting and can touch the fitting but not both at the same time.

Hands don’t feel normal when clean 😂
 

Marketplace Items

Ripper Tooth Excavator Attachment (A61567)
Ripper Tooth...
213086 (A64276)
213086 (A64276)
2016 Ford Taurus Sedan (A61574)
2016 Ford Taurus...
KUBOTA SVL97-2 SKID STEER (A64279)
KUBOTA SVL97-2...
Unverferth 6225 (A64119)
Unverferth 6225...
2007 CATERPILLAR 725 OFF ROAD DUMP TRUCK (A60429)
2007 CATERPILLAR...
 
Top