hydro problem

   / hydro problem
  • Thread Starter
#11  
I don't know if I know how to send schematic but I'll do some research on that. I took off hose on manifold end from port that supplies oil to functions I'm missing and no oil coming out isn't that telling me pump isn't pumping?
I'm an old man, ain't very computer savy but here goes
 
   / hydro problem
  • Thread Starter
#12  
let me know if you get this and if it helps
 

Attachments

  • Image.jpg
    Image.jpg
    2.2 MB · Views: 70
   / hydro problem #13  
let me know if you get this and if it helps
Crazy
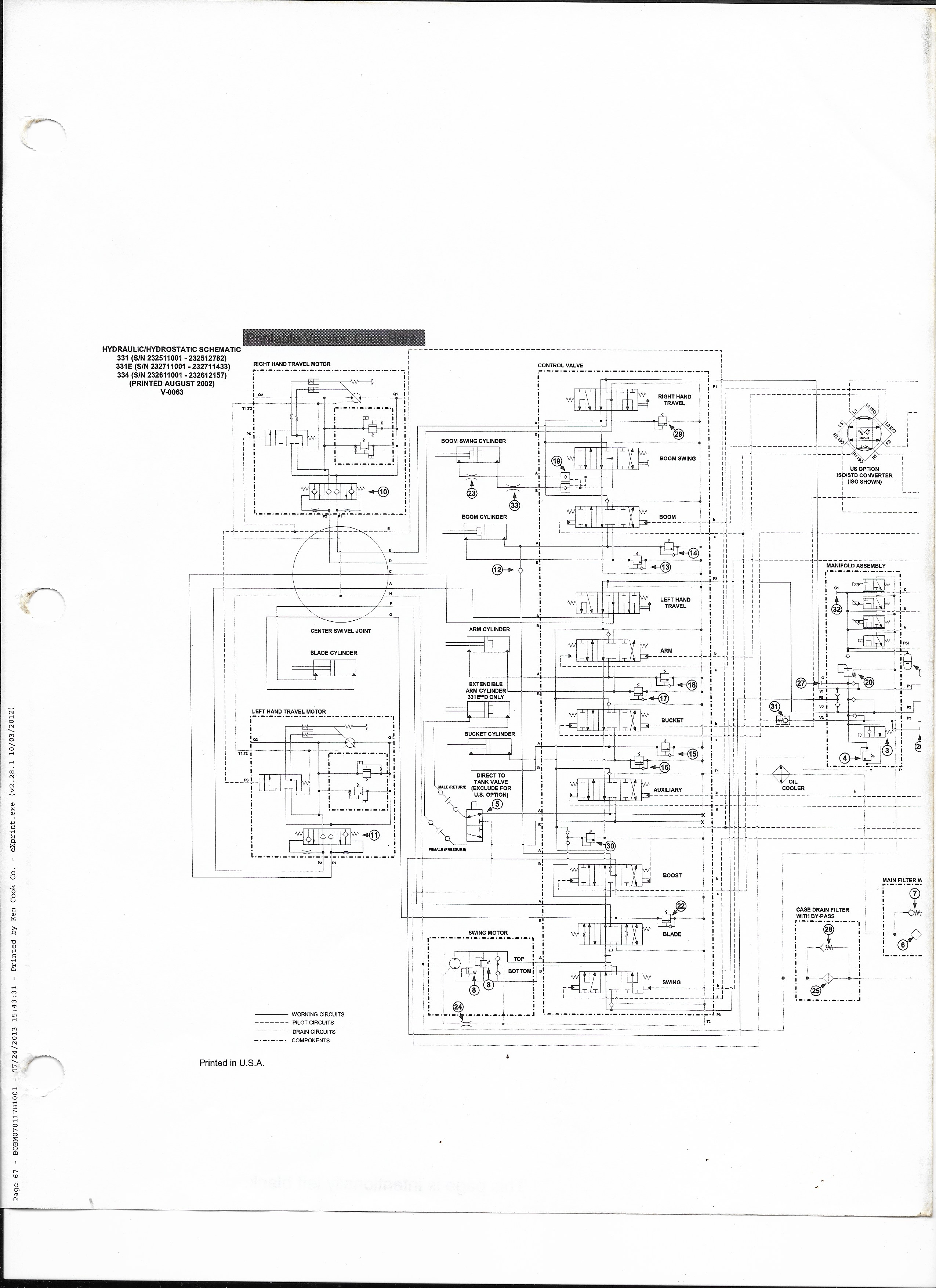
I totally understand not being computer savvy since have the same problems. Schematic doesn’t show the pumps so not sure Which line P2 or P3 is the circuit you opened to check for flow? Both of these are unloaded to tank via valve 3.

Are all the functions in question operated by the same joystick? Did you replace any hoses going to the joystick or were all the hoses you replaced going from valve to a function?
 
   / hydro problem
  • Thread Starter
#14  
Crazy
I totally understand not being computer savvy since have the same problems. Schematic doesn’t show the pumps so not sure Which line P2 or P3 is the circuit you opened to check for flow? Both of these are unloaded to tank via valve 3.

Are all the functions in question operated by the same joystick? Did you replace any hoses going to the joystick or were all the hoses you replaced going from valve to a function?
didn't replace any joystick hoses,but heres food for thought. here is my pump, outlet one- I have right hand travel, boom works, pump outlet two- I have left hand travel, arm and bucket work, pump outlet three no swing or blade. then it says pump outlet two and three are combined for auxilary hydro flow. Is auxilary meaning the thumb? if so doesn't that verify my hoses are corect
 

Attachments

  • Image (2).jpg
    Image (2).jpg
    5.3 MB · Views: 45
   / hydro problem #15  
Per the schematic P3 supplies swing, blade & boost. Then the P3 power beyond combines with P2 downstream of left travel. This then feeds auxiliary, bucket and arm. This allows you to travel and move bucket or arm simultaneously or swing and bucket or boom.

I agree the pump connections appear to be correct.

If you disconnect the hose on P3 and no oil comes out when engine is turned over certainly would point towards the gear pump not turning. Does your manual show a parts breakdown on that pump assembly? Curious what type of drive coupling is between pumps 2 and 3.
 
   / hydro problem
  • Thread Starter
#16  
Per the schematic P3 supplies swing, blade & boost. Then the P3 power beyond combines with P2 downstream of left travel. This then feeds auxiliary, bucket and arm. This allows you to travel and move bucket or arm simultaneously or swing and bucket or boom.

I agree the pump connections appear to be correct.

If you disconnect the hose on P3 and no oil comes out when engine is turned over certainly would point towards the gear pump not turning. Does your manual show a parts breakdown on that pump assembly? Curious what type of drive coupling is between pumps 2 and 3.
when I loosened P3, my wife was watching and couldn't see the bottom of hose to see if it leaked so late yesterday I disconnected P3 completely and cranked over engine and it pissed like a big dog, so I was mistaken about flow. I have a retired mechanic coming Sunday. I will keep you informed. Between you and manual I learned a lot. thanks much, plus I learned how to scan and send documents. you are my new best friend! will let you know what I find out
 
   / hydro problem #17  
Well if you have flow that answers the pump question

Next is why those functions quit. Are they all on the same joystick? Do any of the junctions on that joystick work? Reason for asking is valves are hydraulic pilot controlled by joystick. Just wondering if you possibly lost pilot pressure to that joystick. There is a manifold assembly with ports A, B, and C controlled by 3 individual solenoid valves. I am 99% certain they are pilot pressure lines that feed the joystick but the joysticks are not shown on the schematic you attached. If one of those valves is not shifting it would prevent pilot flow from getting to that part of the circuit.

Just tossing out ideas on what might cause the problem you are experiencing.

Wish you the best in resolving this problem
 
   / hydro problem
  • Thread Starter
#18  
Well if you have flow that answers the pump question

Next is why those functions quit. Are they all on the same joystick? Do any of the junctions on that joystick work? Reason for asking is valves are hydraulic pilot controlled by joystick. Just wondering if you possibly lost pilot pressure to that joystick. There is a manifold assembly with ports A, B, and C controlled by 3 individual solenoid valves. I am 99% certain they are pilot pressure lines that feed the joystick but the joysticks are not shown on the schematic you attached. If one of those valves is not shifting it would prevent pilot flow from getting to that part of the circuit.

Just tossing out ideas on what might cause the problem you are experiencing.

Wish you the best in resolving this problem
 
   / hydro problem
  • Thread Starter
#19  
that's same thing mechanic told me to check. He says all of these solenoid's should be energized when key is turned on, and to check with screwdriver to see if its nagnetized. But many years ago my high speed travel worked some time, I didn't know much about it. The switch that kicks into high is on blade lever so I knew it might be something electrical. So I seen these solenoids and was checking for power, very hard to reach plugs and somewhere along the line I think I got two Plugs mixed because there is a switch on right joystick it keep pressure on thumb and push to release and it was backward when I tried, keeps pressure on release. didn't really care it grabbed good without that function. So that makes me wonder if all should be energized when key is turned on. I checked yesterday and two seemed hot and others were not, I think not sure yet. anyhow high speed travel has a microswitch on throttle cable. the life of keeping dirt under fingernails
 
   / hydro problem #20  
Where you in the area of those valves when you changes those hoses? Just wondering if you could have maybe pulled a wire or connection slightly while doing the replacement. I suspect it was a case of you can see the fitting and can touch the fitting but not both at the same time.

Hands don’t feel normal when clean šŸ˜‚
 

Tractor & Equipment Auctions

CAT D8 (A58214)
CAT D8 (A58214)
Year: 2015 Make: Ram Model: 5500 Chassis Vehicle Type: Truck Mileage: Plate: Body Type: 2 Door Cab; (A55852)
Year: 2015 Make...
2012 DOOSAN G25KW GENERATOR (A58214)
2012 DOOSAN G25KW...
DEUTZ MARATHON 60KW GENERATOR (A55745)
DEUTZ MARATHON...
2025 Kivel 48in Forks and Frame Skid Steer Attachment (A59228)
2025 Kivel 48in...
Meyer 8' Snow Plow w/ Bracket (A55272)
Meyer 8' Snow Plow...
 
Top