New Grapple

/ New Grapple #21  
Although you now have the grapple, They send you a grapple that was not measured to correctly fit your tractor, and they want you to fix the problem yourself. Not.

There is no excuse for shabby work with CAD, and good measuring sticks everywhere.

Just where did they get the drawings for the fit up.

As long as you get at least a half inch of locking power, you should be OK.

The grapple was probably made for some other tractor, and they thought it was close enough

Now, do you think they will fix the next generation of grapples for the same tractor?
 
Last edited:
/ New Grapple #22  
Although you now have the grapple, They send you a grapple that was not measured correctly for your tractor, and they want you to fx the problem yourself.

There is no excuse for shabby work with CAD, and good measuring sticks everywhere.

Just where did they get the drawings for the fit up.

As long as you get at least a half inch of locking power, you should be OK.

The grapple was probably made for some other tractor, and they thought it was close enough

Now, do you think they will fix the next generation of grapples for the same tractor?
It was made to be Skid Steer compatible. Therefore it should be. Theres a standard there. All they have to do is follow it. Somehow Bobcat manages to. ... Maybe since theyve been there from the origination.
larry
 
/ New Grapple #23  
It was made to be Skid Steer compatible. Therefore it should be. Theres a standard there. All they have to do is follow it. Somehow Bobcat manages to. ... Maybe since theyve been there from the origination.
larry

The tolerances for a QA mount are not exactly like those of a camera lens. There should not be slop but a "skid steer" mount is not such a precisely made piece of equipment that it is shocking to find slight gaps. Here is the SAE standard for the skid steer QA mount. http://www.tractorbynet.com/forums/...91d1177387373-here-universal-attachment-mount
 
/ New Grapple #24  
The tolerances for a QA mount are not exactly like those of a camera lens. There should not be slop but a "skid steer" mount is not such a precisely made piece of equipment that it is shocking to find slight gaps. Here is the SAE standard for the skid steer QA mount. http://www.tractorbynet.com/forums/...91d1177387373-here-universal-attachment-mount

If they followed that standard there would be no problem. Welder probably had a bad day

I tend to disagree about the precision, with the exactness of cad drawings and welding setup for welding parts, and rechecking material for fit after complete. Where is that go - no-go gage we have all used.

1/2 in is really bad in this age of cad, plasma, laser cutters, etc. They all cut to precision, and with proper set up. the same results can be achieved every time, or it is rejected, or redone.

You can bet the bosses tractor attachments are done correctly the first time.
 
/ New Grapple #25  
I can't believe the number of these grapples being pumped out that don't fit right. But then again people continue to accept/fix them their selves. Unreal...
 
/ New Grapple #26  
Sorry, IT, but I'm with JJ on this. It is sloppy fixtures or QC. Even gator told me that it should be no more than 1/8" gap and that they screwed up. Mine was in the ~3/8" range before shimming. There is no excuse to be off 1/2" over a 16" dimension in a production environment, especially when it is a critical-to-function dimension.
 
/ New Grapple #27  
It was made to be Skid Steer compatible. Therefore it should be. Theres a standard there. All they have to do is follow it. Somehow Bobcat manages to. ... Maybe since theyve been there from the origination.
larry

The tolerances for a QA mount are not exactly like those of a camera lens. There should not be slop but a "skid steer" mount is not such a precisely made piece of equipment that it is shocking to find slight gaps. Here is the SAE standard for the skid steer QA mount. http://www.tractorbynet.com/forums/...91d1177387373-here-universal-attachment-mount
Is your point that it does not have to be SS compatible, or that if it fits on then thats close enuf? Everything has acceptable tolerances. Those tolerances follow the part function. How much do you consider a slight gap? It really depends on where, doesnt it? Tolerances account for these sensitivities or lack thereof.
larry
 
/ New Grapple #28  
dstig1 said:
Sorry, IT, but I'm with JJ on this. It is sloppy fixtures or QC. Even gator told me that it should be no more than 1/8" gap and that they screwed up. Mine was in the ~3/8" range before shimming. There is no excuse to be off 1/2" over a 16" dimension in a production environment, especially when it is a critical-to-function dimension.

I agree that 1/2" is way off. However 1/8" clearance can make clearance so tight that hookup gets difficult so a little slop is desirable. Laser cut and factory precision welded parts from a CAD drawing are not always pluses in a farm environment where a little dirt can interfere. It also matters how deep the tractor side adapter pins drop down as that can make up for some of the gap by ensuring the grapple cannot pop off even if it "jiggles" a bit when mounted.
 
/ New Grapple #29  
It is inexcusable but if they can't make it to spec, it's better to be too big than too small. Too small and you get EVERY ONE returned. Too big- only some of them.
 
/ New Grapple #30  
This is the 1/8". Never had a single problem hooking up.
 

Attachments

  • resized 100_9726 (800x594).jpg
    resized 100_9726 (800x594).jpg
    323.2 KB · Views: 266
/ New Grapple #31  
I would suggest that if not using a jig, that could be the problem.

Hand held fit up and closed eyes just ain't good enough.

Can anyone tell if the welds are robot welded or human welding.

I am thinking a robot welder can spot a bad fit up and cancel or request a jig alignment.
 
/ New Grapple #32  
This is the 1/8". Never had a single problem hooking up.

You shouldn't, that is a good match up, unlike others.

There is probably a lot more attachments that do not fit correctly.
 
/ New Grapple #33  
This is the 1/8". Never had a single problem hooking up.

I guessed at 1/8th, the point is that at some degree of accuracy you will find slight variations due to debris or manufacturing tolerances that make it too tight to easily hook up. A quick attach system should be robust enough that 1/8" variation one way or the other doesn't interfere with routine hook up. My own grapple is tight enough that sometimes when I pick it up, before putting the lever/locking pins down, that it will stick in a position that makes it necessary to jiggle the FEL or grapple to get it to seat properly. I'd prefer simple gravity to seat it each time and that the locking system be designed to work properly and safely even with whatever size gap is necessary to make mounting simple.

I don't want to overstate my case here, most FEL SS implements mount without hassle and I've never had anything fall off once mounted.
 
/ New Grapple
  • Thread Starter
#34  
The tolerances for a QA mount are not exactly like those of a camera lens. There should not be slop but a "skid steer" mount is not such a precisely made piece of equipment that it is shocking to find slight gaps. Here is the SAE standard for the skid steer QA mount. http://www.tractorbynet.com/forums/...91d1177387373-here-universal-attachment-mount

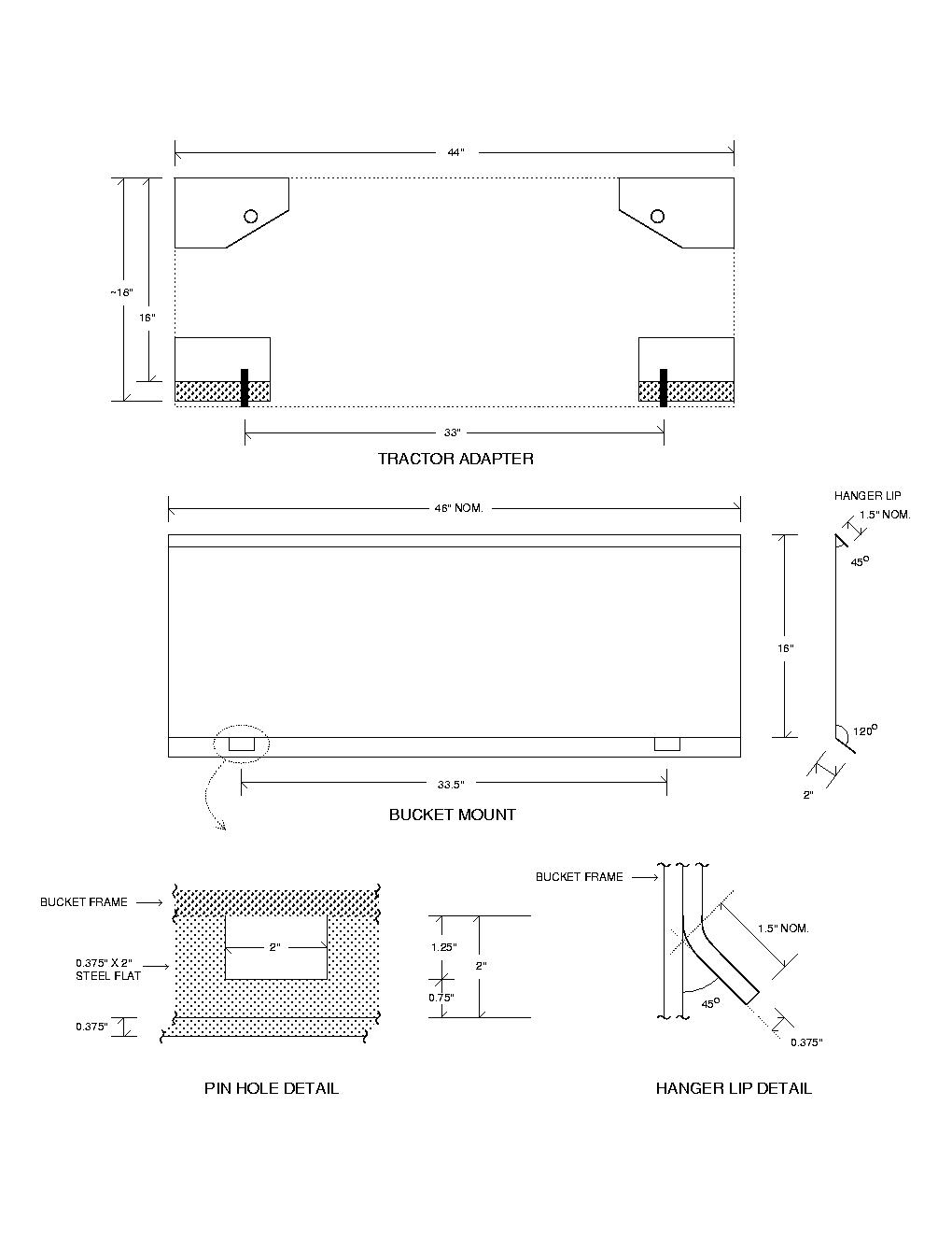
I am beginning to see the problem now. Check out the vertical dimensions for your drawing. It states 16 & 5/8ths to 16 & 9/16th. Now check out the drawing dimension given to me...it show 16 inches. No plus or minus. My grapple measures 16.5 inches. My QA tool carrier measures 16 inches. My KMW bucket that came with the loader measures 16.25 inches. So I am thinking there is a difference out there between skid steer and tractor spec. I know, they are suppose to all be the same.................but obviously there are two difference drawings with two different vertical dimensions floating around in cyber space.
hugs, Brandi
 

Attachments

  • SSQA.jpg
    SSQA.jpg
    87.7 KB · Views: 249
/ New Grapple #35  
It is inexcusable but if they can't make it to spec, it's better to be too big than too small. Too small and you get EVERY ONE returned. Too big- only some of them.
Too big : all customers suffer. Too small: the mfg suffers. Only one of those is guaranteed to be self correcting. Making to spec is easy enuf for those who view it as a responsibility to do so.
larry
 
/ New Grapple
  • Thread Starter
#36  
Just heard my shim plates will be made in 10 days. Which is fine with me as we got 4.5 inches of rain last night.:D
hugs, Brandi
 
/ New Grapple #37  
I am beginning to see the problem now. Check out the vertical dimensions for your drawing. It states 16 & 5/8ths to 16 & 9/16th. Now check out the drawing dimension given to me...it show 16 inches. No plus or minus. My grapple measures 16.5 inches. My QA tool carrier measures 16 inches. My KMW bucket that came with the loader measures 16.25 inches. So I am thinking there is a difference out there between skid steer and tractor spec. I know, they are suppose to all be the same.................but obviously there are two difference drawings with two different vertical dimensions floating around in cyber space.
hugs, Brandi
The drawing given you is wrong by virtue of being simplistic. Much better referencing is necessary to make parts that will fit.
larry
 
/ New Grapple #39  
I am beginning to see the problem now. Check out the vertical dimensions for your drawing. It states 16 & 5/8ths to 16 & 9/16th. Now check out the drawing dimension given to me...it show 16 inches. No plus or minus. My grapple measures 16.5 inches. My QA tool carrier measures 16 inches. My KMW bucket that came with the loader measures 16.25 inches. So I am thinking there is a difference out there between skid steer and tractor spec. I know, they are suppose to all be the same.................but obviously there are two difference drawings with two different vertical dimensions floating around in cyber space.
hugs, Brandi

Brandi look at the drawing again. The 16 9/16"-16 5/8" is the measurement to the edge of the hole at the bottom closest to the tractor/skid steer. The dimension to the left, 15 7/8" is the one you should be looking at. Then If manufacturers build at 16" they allowed an 1/8" for clearance. They may have built at 16 5/8" and that's why you are 1/2" too much gap.
 
/ New Grapple #40  
 

Marketplace Items

74 Gallon Delta Fuel Cell with Tool Box (A61166)
74 Gallon Delta...
Caterpillar 259D3 (A62180)
Caterpillar 259D3...
(2) 18.4-38 TIRES W/SPACERS (1) 18.4-38 TIRE (A62131)
(2) 18.4-38 TIRES...
2018 International DuraStar 4300 26ft. Box Truck (A61568)
2018 International...
4ft Mini Skid Quick Attach Rotary Cutter (A63118)
4ft Mini Skid...
2025 Swict 66in Tooth Bucket Skid Steer Attachment (A61567)
2025 Swict 66in...
 
Top